CALVAIRE d'ARRANCY - (Sous-secteur ARRANCY - 149° RIF)
( PC de Sous-Secteur )
Secteur Fortifié
SFCR - SF Crusnes
Maître d'ouvrage
MIL - Commandement
Année
Commune
ARRANCY sur CRUSNES(55230)
Coordonnées
49.416423 - 5.658126
Validité information
Verifié
Niveau de réalisation en 1940
Construit
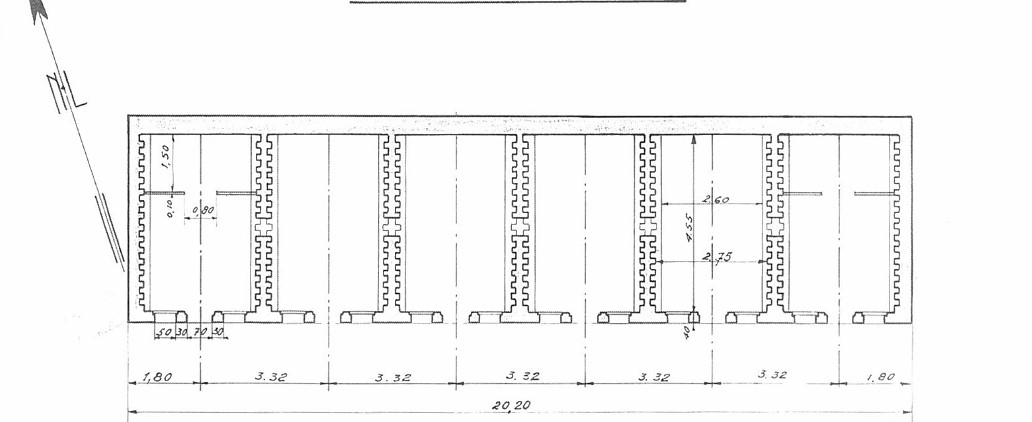
Plan sommaire
Notes et informations
CONSTRUCTION, Description
Le PC du CALVAIRE d'ARRANCY est composé de quatre bâtiments.
Le bâtiment principal (1) de l'ensemble comporte six alvéoles en tôle métro derrière une façade maçonnée.
La première alvéole abrite le central téléphonique de la partie infanterie du PC.
La seconde alvéole abritait le PC infanterie.
La troisième alvéole abritait le PC artillerie.
La quatrième alvéole abritait le Service de Renseignement de l'Artillerie (SRA).
La cinquième alvéole abritait le central téléphonique de la partie artillerie du PC.
Un autre bâtiment est construit sur le même principe (2).
Les deux autres se composent d'un local partiellement enterré et dont l'accés est protégé par un mur maçonné. Le bâtiment 3 est en ruine.
CONSTRUCTION, Mission, ou Fonction de l'objet
Le PC du CALVAIRE d'ARRANCY est le PC du sous secteur fortifié d'Arrancy (SF Crusnes).
DENOMINATION, Indicatifs et n° d'abonné
Le numéro d'abonné du PC au réseau téléphonique de la fortification Maginot était 1260
Source(s) :
Quelque part sur la ligne Maginot - JY Mary
EFFECTIF, Commandement et/ou unité
Le sous-secteur fortifié d'Arrancy est tenu par le 149° RIF (Régiment d'Infanterie de Forteresse) et par ASS3 pour l'artillerie.
Le 149° RIF est commandé par le Lt-Col BEAUPUIS.
DIVERS (Sans critère)
Les limites imposées au 149° RIF en août 1939 sont : le ruisseau 2 km est de Pierrepont, 1,5 km nord-est de Baslieux (exclu), Chenières.
Le sous secteur correspond à un front de 11 km de long comprenant 2 gros ouvrages; FERMONT et LATIREMONT, le petit ouvrage de la FERME CHAPPY, 10 casemates CORF et un grand nombre de blockhaus, abris et PC de construction MOM.
Page n° 12598 mise à jour le 05/02/2025 -
© wikimaginot.eu 2012 / 2026
L'accés aux documents en ligne est réservé aux utilsateurs inscrits sur le site.
PCs du Calvaire d'Arrancy et de Ville-au-Montois
Plans des PC et implantation des matériels téléphoniques
Auteur :
Génie
Droits réservés
Document #49678 disponible en ligne (294.26 Ko)
PC de Ville-au-Montois
Schéma des installations téléphoniques du PC
Ce schéma s'applique selon toute vraisemblance aussi au PC du Calvaire d'Arrancy
Auteur :
Génie
Droits réservés
Document #49680 disponible en ligne (121.91 Ko)
La visite de ces constructions peut se réveler dangereuse, Mise en garde
Cette page peut receler des erreurs, des inexactitudes ou être incomplète.
Nous vous invitons à nous aider à l'améliorer en y participant.
Pour cela rien de plus simple: il vous suffit de cliquer sur Nous contacter au bas de cette page
pour nous faire part de vos commentaires, suggestions, corrections ou informations et nous transmettre vos photos et documents.
Merci d'avance, la communauté wikimaginot.eu