SERVEUR DE TEST


Ecouviez ouest , une casemate cuirassée ??

L'accès de ce fil est réservé aux membres de l'association et aux utilisateurs invités



Fil ouvert par MDL/CHEF HARMAND - Posté le 23/05/2021

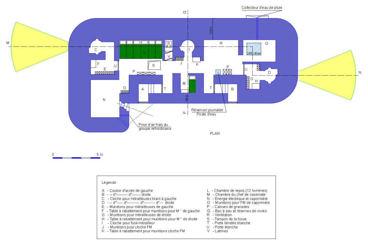
Bonjour , je viens de regarder le plan de la casemate CORF cuirassée modèle 1934 .

Est ce que la casemate d'Ecouviez ouest rentre dans cette catégorie , sachant qu'elle répond aux critères pour ce qui est des cloches , mais ne possède qu'une seule entrée , qu'est ce donc ? Une variante cuirassée ou une casemate simple sans chambre de tir ??

Merci d'avance pour vos réponses !

Cordialement

David Harmand

Réponse de jolasjm - Posté le 23/05/2021
Dernière modification par jolasjm le 23/05/2021.
Bonjour David

Qu'appelles-tu "casemate CORF cuirassée Mle 1934" ? La seule notice/instruction concernant les casemates CORF cuirassées ayant eu une existence officielle date de Janvier 1931. Il y a bien un "Projet de Notice relative à l'établissement de casemates et blockhaus pour armes automatiques et engins antichars" pondu par la STG et daté du 7 Juin 1934, mais qui comme beaucoup de projets n'a jamais vu le jour officiellement... Ce projet intègre un chapitre sur les casemates cuirassées - parmi d'autres - mais le modèle décrit dans ce document contient des cloches JM (et pas AM) et les deux cloches décrites sont l'une en flanquement droit et l'autre en flanquement gauche, ce qui n'est pas le cas de la casemate d'Ecouviez Ouest. Ledit projet est encore très influencé par les dogmes "ancien fronts" et cela explique sans doute son abandon sans suites à un moment où les nouveaux fronts étaient déjà en cours de conception. Je vois ce document comme une tentative de capture après coup de l'ensemble des bonnes pratiques de la phase "anciens fronts" dont les notices précédentes dataient de 1929-1931...

Au moment de la rédaction de ce projet de Notice et des discussions qui s'en sont suivies, la casemate d'Ecouviez Ouest était elle aussi déjà en cours de conception (son plan d'implantation date de Décembre 1934). Pas surprenant donc qu'elle n'y soit pas conforme !

Bien cordialement
Jean-Michel

Réponse de MDL/CHEF HARMAND - Posté le 23/05/2021
Dernière modification par MDL/CHEF HARMAND le 23/05/2021.
Bonsoir Jean-Michel,

c'est notifié ainsi dans la rubrique liste "plan type " Casemate cuirassé CORF 1934

Pour le reste je comprends que le bébé soit resté en gestation , c'est donc un exemplaire unique et adapté à la configuration du terrain.

Cordialement ,merci.

David





Réponse de jolasjm - Posté le 24/05/2021

Bonjour David

Je reprendrai cette page de plan-type. Il est bien précisé qu'il s'agit d'un projet de plan type, mais sans indication que cette configuration n'a pas été appliquée en tant que telle.

C'est un bon exemple de capture après coup de bonnes pratiques locales. La version antérieure - et officielle - de notice de casemate cuirassée avait un défaut trés sérieux : la façade des entrées n'était pas protégée par une caponnière. Les premières casemates cuirassées furent construites ainsi, mais rapidement les chefferies de génie modifièrent ce défaut en ajoutant une caponnière. Ce projet de notice ne faisait qu' "officialiser" cette modification d'initiative locale !

Note que les casemates cuirassées sont très rares sur les nouveaux fronts. On n'en connait que 2 : Ecouviez Ouest et Marpent Nord (Maubeuge). En effet toutes les deux sont un bon exemple d'adaptation au terrain.

Bien cordialement
Jean-Michel

Réponse de Frédéric Lisch - Posté le 24/05/2021

Salut à tous,

Je me permets d'ajouter une troisième casemate cuirassée d'infanterie dans les "nouveaux fronts" : il s'agit de Singling Nord-Ouest droite (ou "2" selon des documents d'époque).

En effet, la façade arrière munie d'un unique créneau JM prête à confusion. Ce créneau est secondaire ; son but est l'appui réciproque de casemate à casemate. L'armement principale est constitué de deux cloches AM (dont une très rare à un créneau) en action frontale et en flanquement vers l'ouvrage du Welschhof.

Dans la note explicative datée du 29 mai 1934, le lieutenant-colonel Reverdy, chef du bureau d'étude de la DTF de Strasbourg, en donne une rapide description : "la casemate de Singling Nord-Ouest droite dérive du type de casemate munie de cloches cuirassées pour mitrailleuses décrite par l'instruction du 28 janvier 1931". L'armement initialement prévu est une cloche JM pour l'action frontale et une cloche JM pour le flanquement à droite que Reverdy propose de remplacer par des cloches AM. Il propose également d'ajouter une "caponnière" pour JM et 13,2 mm pour flanquer à courte distance la casemate de gauche (ou "1"). La mitrailleuse lourde est finalement remplacée par un 25 mm puis faute de livraison, par un unique JM...

Notons que cette "caponnière" est l'un des traits caractéristiques de certaines casemates de l'extension de l'aile gauche de la RFL. On la retrouve notamment au bloc 1 du Welschhof et aux blocs 1 et 3 de Rohrbach.

La casemate de Singling Nord-Ouest 2 est un beau "mouton à cinq pattes" comme nous les aimons tant...

Frédéric Lisch.

Réponse de MDL/CHEF HARMAND - Posté le 24/05/2021

Bonsoir à vous !


Je bois vos paroles !!

A propos des cloches AM à un créneau , est ce seulement pour une raison budgétaire qu'elles ont été crée ?

Celle de Saint-Antoine assurant un complément du plan de feux de flanquements vers la casemate de Fresnois voit elle un unique créneau pour une raison autre ??

Cordialement

David

Réponse de Frédéric Lisch - Posté le 25/05/2021
Dernière modification par Frédéric Lisch le 25/05/2021.
Salut David,

Les cloches AM à un créneau ne sont pas liées à une réduction budgétaire mais aux plans de feux. Dans tous les cas, le deuxième créneau semble inutile. Par exemple à Saint-Antoine, la cloche AM "un créneau" est associée à la chambre de tir près de laquelle elle est située et permet d'obtenir une zone de tir plus étendue comme on peut le voir dans certaines casemates "anciens fronts" (Chénières, Mottenberg et Oberroedern). Cette extension de la zone de tir est possible par simple rotation (sur le papier) de la cloche et permet ainsi d'obtenir des axes de tir (celui du JM sous béton et celui de la cloche) convergents ou divergents. Ceci serait difficilement possible avec deux créneaux JM sous béton.

Dans les autres cas, la zone de tir horizontale d'un unique créneau qui est, rappelons le, de 45° est suffisante pour effectuer un appui-feu en opposition de casemate à casemate (voir le petit croquis illustrant une cloche JM en conjugaison avec un JM sous béton et une cloche JM en opposition de la chambre de tir).

Dans le cas de Singling NO droite, la cloche AM en tête de casemate dispose de deux créneaux, l'un en action frontale et l'autre, divergent de 75 grades, en flanquement vers l'ouvrage du Welschhof ; celui-ci est en conjugaison avec l'unique créneau de la cloche Est, lui aussi, en flanquement vers le Welschhof.

C'est un peu complexe mais seuls le terrain et le rôle de chaque organe de combat commandent...

Frédéric Lisch.





Réponse de MDL/CHEF HARMAND - Posté le 25/05/2021

Bonsoir tout le monde !

Merci pour les explications et pour le croquis

A+

David


Vous ne pouvez pas participer à ce fil de discussion, seuls les utilisateurs inscrits peuvent y répondre ou y contribuer.
S'inscrire sur le site est gratuit, rapide et sans engagement.