SERVEUR DE TEST


Type de Moteur

Lien-s partie Constructions :
AUMETZ - A7 (Ouvrage d'infanterie)


Fil ouvert par Ouvrage_39_45 - Posté le 18/10/2024

Bonjour

Une source fiable m’a informé qu’elle avait eu l’occasion de mesurer l’alésage
sur les restes moteur Renault de l’usine ; c’est 130 mm.
Les moteurs actuels, 6 cylindres, d’Aumetz sont donc des 6-I-130
similaires au Bambesch.
La puissance déjà indiquée pour ces moteurs, 54 CV,
correspond à l’état de nos connaissances.

Denis

Réponse de Pascal - Posté le 19/10/2024

Bonjour Denis

Merci pour cette confirmation.

Amicalement, Pascal

Réponse de pierre1942 - Posté le 30/11/2024

Bonsoir,

Quel régime pour le Renault 6i130 et quelle course pour ses pistons ?

Le 6i140 monté par Berry sur des locos construits en 1951 était donné pour une puissance de 125 ch.

D'où ma question car 54 ch me paraissent légers, et comme je cherche des infos sur le 6i140, je tente de comprendre.

Cordialement, Pierre

Réponse de Ouvrage_39_45 - Posté le 02/12/2024

Bonjour Pierre

Nous manquons crucialement d’informations claires concernant les moteurs Renault et,
certaines nous interpellent, notamment les puissances : comme vous le faites remarquer.

Ce que nous savons est que les 6-I-115 et 6-I-125 exploite le même bâti moteur mais avec
des chemises cylindres de diamètre intérieur différentes.
L’entre-axe cylindre est de 176 mm
La course est de 170 mm
Ce principe reste valable pour les 4 cylindres du type 4-I-115 et 4-I-125 et aussi pour
les versions C (Camions) et M (Marine) du type 4/6-C-115/125 et 4/6-M-115/125.

Concernant les 4/6 - C/I/M - 130 l’entre-axe cylindres reste le même (176mm)
et la course aussi (170mm).
Le fait que ce soit toujours le même bâti avec une chemise en diamètre intérieur encore
plus grand est éventuellement probable mais pas confirmé.

Pour les versions en alésage 140mm, je doute fort sur le fait que ce soit encore le
même principe car il n’y aurait plus d’épaisseur suffisante sur la chemise.
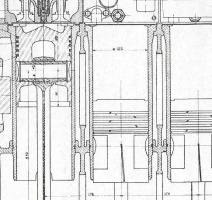
Déjà, je doute qu’elle soit acceptable pour les versions 130mm (voir plan coupe d’un 125).
Sur le 6-I-140, la course semble aussi être de 170 mm (voir photo).
Puissance en régime continue : 80CV (1000tr/mn) ou 120CV (1500tr/mn).
Il serait pertinent que vous vérifiiez votre entre-axe cylindre pour confirmer que
cela serait encore le même bâti !

Les puissances de ces moteurs restent un gros dilemme.
En comparaison avec d’autres marques, en alésage identique, les Renault semblent
très faibles et les rares documents que nous avons ne s’accordent pas en valeurs CV.
En exemple, le document que je joins, n’est même pas à 54 CV pour le 6-I-130 (35Kw=47CV)
Certes, il faut considérer la vitesse de rotation :
généralement 600 ou 750tr/mn en Ouvrage Maginot pour les Renault.

Sur la ligne, il y a aussi des Renault 4-I-190 (ou 4-I-200) donné à 77CV.
Cette valeur, d’apparence faible, et pourtant visible sur des documents d’entretien du génie.

Rares sont les moteurs qui possèdent encore des plaques.
Quelques plaques en forme de losange Renault avec un N°= de série mais, pas
de plaque d’indentification.
Si votre 6-I-140 de 1951 à encore une plaque mentionnant, type, année, puissance,
vitesse max,.. Merci pour une photo ; cela permettra de nous donner une idée de
l’aspect et des informations susceptibles d’avoir été sur les moteurs d’avant-guerre.

J’espère que je vous ai aidé.

Denis





Réponse de pierre1942 - Posté le 03/01/2025

Bonjour Denis,

En premier lieu, bonne année et surtout bonne santé bien au-delà de 2025.

Le Renault 6i140, qui équipait ces gros locotracteurs miniers Berry, faisait bien 170 de course pour 140 d'alésage, et son régime était de 1500 tr/m.

Je crois même me souvenir qu'il était incliné sous le capot pour permettre au conducteur de mieux voir devant lui, mais
je n'ai découvert aucune autre info sur ce type de moteur.

Quant aux machines de 20 tonnes qui en étaient équipées, elles sont (d'après ce que j'en sais) toutes restées au fond des galeries des mines de potasse d'Alsace, au même titre que les autres dotées de moteurs Willème F6M de 150 ch.

Mais il y a aussi eu un prototype datant de 1939 avec Renault 4 cylindres de 75 ch (autres caractéristiques inconnues). Il a été sauvegardé et se trouve sur le Carreau Rodolphe à Pulversheim (68). La photo dudit moteur est ci-dessous.

Pas question pour moi de dévier le bon déroulement de ce fil, mais si ça peut aider à l'analyse des moteurs Renault...

Cordialement, Pierre






Vous ne pouvez pas participer à ce fil de discussion, seuls les utilisateurs inscrits peuvent y répondre ou y contribuer.
S'inscrire sur le site est gratuit, rapide et sans engagement.